Документы
Комбинированная варочная панель SMEG PM6954R позволяет готовить как с помощью газовой конфорки, так и на электрической панели. Газ-контроль перекроет подачу газа, если пламя случайно погаснет. Сенсорные переключатели позволяют наиболее четко регулировать нужный уровень нагрева.
Характеристики:
Способ подключения Газ + Электричество
Вид Комбинированная
Коллекция Dolce Stil Novo
Цвет черное стекло
Материал панели конфорок Стеклокерамика
Цвет фурнитуры черный
Материал решеток Чугун
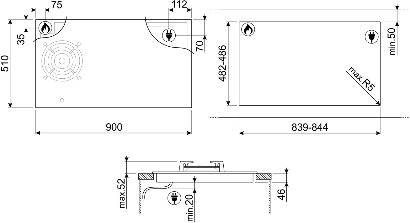
РАЗМЕРЫ И УСТАНОВКА
Высота, см 4.6
Ширина, см 90
Глубина, см 51
Ширина ниши для встраивания, см 83.9-84.4
Глубина ниши для встраивания, см 48.2-48.6
Способ установки Накладная
УПРАВЛЕНИЕ
Элементы управления Поворотные
Управление Touch control Есть
Количество регулируемых уровней мощности 9
Индикаторы Времени приготовления Уровня мощности
Таймер Есть
Автоматический электроподжиг Есть
ФУНКЦИОНАЛ
Автоматические режимы Автоматическое поддержание кипения, Гриль, Поддержание тепла
Работа на максимальной мощности Booster Есть
Функция «Пауза» Есть
Акустический сигнал окончания приготовления Есть
КОНФОРКИ
Общее количество конфорок 5
Количество газовых горелок 1
Количество индукционных зон нагрева 4
Зоны нагрева MultiZone Есть
Конфорка повышенной мощности «Двойная корона»
МОЩНОСТЬ КОНФОРОК
Передняя правая, кВт 2.1 / 3
Задняя правая, кВт 2.1 / 3
Центральная, кВт 3 / 3.7
Правая, кВт 3 / 3.7
Левая, кВт 6
Ближняя, кВт 2.1 / 3
Дальняя, кВт 2.1 / 3
ДИАМЕТР КОНФОРОК
Передняя правая, см 23 х 18
Задняя правая, см 23 х 18
Центральная, см 38.5 x 23.0
Правая, см 38.5 x 23.0
Ближняя, см 23 х 18
Дальняя, см 23 х 18
БЕЗОПАСНОСТЬ
Газ-контроль Есть
Блокировка управления от детей Есть
Индикация остаточного тепла Есть
Защита от перегрева Есть
Защита при проливании Есть
ТЕХНИЧЕСКИЕ ХАРАКТЕРИСТИКИ
Мощность подключения к газу, кВт 6.0
Мощность подключения к электричеству, кВт 7.4
Напряжение, В 220-240
Частота тока, Гц 50/60
Сила тока, А 33
Тип газа природный G20
Аксессуары в комплектежиклеры для сжиженного газа G30 GPL, чугунная решетка WOK
Вес брутто, кг 20.3
Для покупки товара в нашем интернет-магазине выберите понравившийся товар и добавьте его в корзину. Далее перейдите в Корзину и нажмите на «Оформить заказ» или «Быстрый заказ».
Когда оформляете быстрый заказ, напишите ФИО, телефон и e-mail. Вам перезвонит менеджер и уточнит условия заказа. По результатам разговора вам придет подтверждение оформления товара на почту или через СМС. Теперь останется только ждать доставки и радоваться новой покупке.
Оформление заказа в стандартном режиме выглядит следующим образом. Заполняете полностью форму по последовательным этапам: адрес, способ доставки, оплаты, данные о себе. Советуем в комментарии к заказу написать информацию, которая поможет курьеру вас найти. Нажмите кнопку «Оформить заказ».
Оплачивайте покупки удобным Вам способом. В нашем интернет-магазине доступны следующие формы оплаты:
- Наличными курьеру или в офисе при самовывозе
- Банковской картой
- Онлайн по карте. Вам придет ссылка для оплаты через электронную систему платежей
- Переводом на карту.
- Безналичный платеж. Мы выставим счет на указанные Вами ревизиты
- Кредит. Вы также можете оформить покупку в кредит или в рассрочку.
Экономьте время на получении заказа. В интернет-магазине 38покупок доступно 4 варианта доставки:
- Курьерская доставка работает с 9.00 до 19.30. Когда товар поступит на склад, курьерская служба свяжется для уточнения деталей. Специалист предложит выбрать удобное время доставки и уточнит адрес. Осмотрите упаковку на целостность и соответствие указанной комплектации.
- Самовывоз из магазина. Если Вам неудобно ждать курьера, можете забрать товар сами с нашего склада по адресу Иркутск, Красноказачья, 74/1. Когда заказ поступит на склад, вам придет уведомление. Для получения заказа обратитесь к менеджеру, назовите номер заказа.
- Транспортной компанией. Если Вы проживаете в удаленном от Иркутска городе, мы отправим Ваш заказ после оплаты транспортной компанией по согласованию с Вами до терминала либо прямо до Вашего адреса.
- Почтой России. Когда заказ придет в отделение, на ваш адрес придет извещение о посылке.
